Рассрочка 0% на кладовые на 2 года
3-комн. квартира
66 121 068 ₽
94 458 668 ₽
3-комн. квартира №274, 119.8 м²
66 121 068 ₽ *
94 458 668 ₽
О квартире
ПрезентацияПроект
Метро
Технопарк
Адрес
Москва, внутригородская территория, муниципальный округ Даниловский, набережная Марка Шагала, земельный участок 15
Корпус
2 очередь, 1 этап, корпус 6
Секция
Секция 6.1
Этаж
15 из 19
Высота потолков
3.12 м
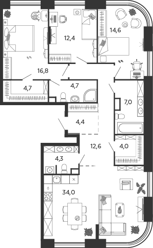
Размеры
Прихожая
4.3 м²
Кухня-столовая
34 м²
Спальня
16.9 м²
Спальня
14.6 м²
Спальня
12.5 м²
Санузел
7 м²
Санузел
4.8 м²
Санузел
4.3 м²
Коридор
12.6 м²
Гардеробная
4.7 м²
Гардеробная
4.1 м²
Показать размеры комнат
Не для субсидированной ипотеки
Особенности
Рассчитайте ипотеку в ЖК Шагал
Семейная ипотека
Процентная ставка
0 %
Ежемесячный платеж
Лучшие условия
Процентная ставка
0 %
Ежемесячный платеж
Мы не нашли подходящих предложений
Специально для Вас у нас есть уникальные условия. Оставляйте заявку, и мы обсудим все интересующие Вас нюансы лично.
Похожие квартиры
Вопрос-ответ
Остались вопросы?
